Продается двухкомнатная квартира
Плановая 56, район Заельцовский
20.11.2025


































Стоимость
8 800 000 ₽
231 578 рублей за м2
231 578 рублей за м2
Количество комнат
2 комн
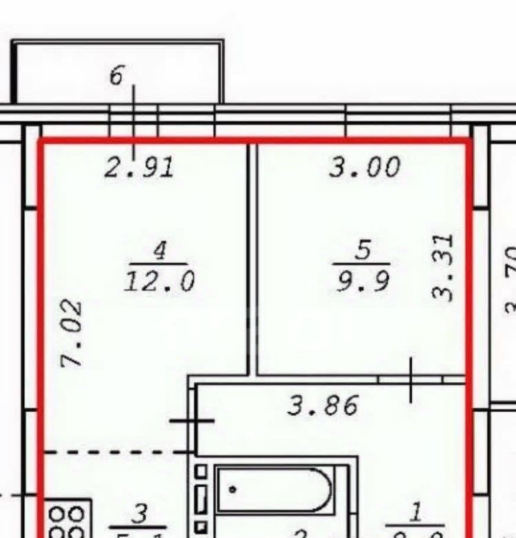
Общая площадь
38 м²
Этаж
7 из 16
Несуществующий объект, неправильная информация? - обязательно сообщите.
Дополнительная информация:
продаётся квартира в жк русское солнце , дом застава, комфортный 7 этаж 18этажного дома. жк бизнес класса.дом сдан, ключи на руках.квартира 38,8 кв. м., кухнягостиная 17 кв. м., потолки 2,87.технология строительства монолитный каркас с кирпичным заполнением. внешние стены выполнены по технологии многослойной кирпичной кладки.квартира с отделкой white boxстяжка пола подготовлена к укладке чистовых отделочных материалов , на кирпичные стены нанесена гипсовая штукатурка, швы между пазогребневыми плитами заштукатурены. стены сан. узлов изнутри оштукатурены марочным цементнопесчаным раствором. во всех квартирах установлены приборы учета воды, электроэнергии и качественные металлические утепленные входные двери с двумя замками и внутренним мдфщитком. окна и двери балконов выполнены из пятикамерного пвхпрофиля.удачное расположение квартиры, вид из окна в сторону зоопарка.жилой комплекс русское солнце будет включать шесть домов, каждый из которых уникален, каждый произведение архитектурного и строительного искусства, у каждого своё имя и свой характеризуется 30этажная колокольня, ларец, теремной, зимний, красные ворота, застава.жилой комплекс русское солнце расположен в центральной части новосибирска. локация сочетает в себе выгодное расположение и экологическое окружение буквально за поворотом находится тимирязевский сквер, через дорогу дендрологический парк и новосибирский зоопарк, прекрасные места для отдыха и прогулок. социальная инфраструктура в шаговой доступностимадоу дс 59265 ммадоу г. новосибирска детский сад 59 золотой петушок276 мсредняя общеобразовательная школа 172370 м вечерняя сменная общеобразовательная школа 1396 мсредняя общеобразовательная школа 120397 мсредняя общеобразовательная школа 24501 ммкдоу детский сад 466 комбинированного вида незабудка581 м. дополнительно оплачивается комиссия с покупателя.код пользователя 177207номер в базе 10091148
продаётся квартира в жк русское солнце , дом застава, комфортный 7 этаж 18этажного дома. жк бизнес класса.дом сдан, ключи на руках.квартира 38,8 кв. м., кухнягостиная 17 кв. м., потолки 2,87.технология строительства монолитный каркас с кирпичным заполнением. внешние стены выполнены по технологии многослойной кирпичной кладки.квартира с отделкой white boxстяжка пола подготовлена к укладке чистовых отделочных материалов , на кирпичные стены нанесена гипсовая штукатурка, швы между пазогребневыми плитами заштукатурены. стены сан. узлов изнутри оштукатурены марочным цементнопесчаным раствором. во всех квартирах установлены приборы учета воды, электроэнергии и качественные металлические утепленные входные двери с двумя замками и внутренним мдфщитком. окна и двери балконов выполнены из пятикамерного пвхпрофиля.удачное расположение квартиры, вид из окна в сторону зоопарка.жилой комплекс русское солнце будет включать шесть домов, каждый из которых уникален, каждый произведение архитектурного и строительного искусства, у каждого своё имя и свой характеризуется 30этажная колокольня, ларец, теремной, зимний, красные ворота, застава.жилой комплекс русское солнце расположен в центральной части новосибирска. локация сочетает в себе выгодное расположение и экологическое окружение буквально за поворотом находится тимирязевский сквер, через дорогу дендрологический парк и новосибирский зоопарк, прекрасные места для отдыха и прогулок. социальная инфраструктура в шаговой доступностимадоу дс 59265 ммадоу г. новосибирска детский сад 59 золотой петушок276 мсредняя общеобразовательная школа 172370 м вечерняя сменная общеобразовательная школа 1396 мсредняя общеобразовательная школа 120397 мсредняя общеобразовательная школа 24501 ммкдоу детский сад 466 комбинированного вида незабудка581 м. дополнительно оплачивается комиссия с покупателя.код пользователя 177207номер в базе 10091148
Похожие двухкомнатные квартиры в районе Заельцовский





