Продается однокомнатная квартира
Красный просп 197/9, район Заельцовский
17.11.2025

















































Стоимость
6 900 000 ₽
237 931 рублей за м2
237 931 рублей за м2
Количество комнат
1 комн
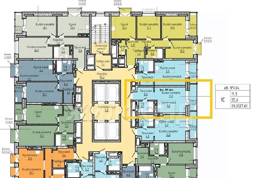
Общая площадь
29 м²
Этаж
20 из 31
Несуществующий объект, неправильная информация? - обязательно сообщите.
Дополнительная информация:
в продаже студия на видовом этаже в строящемся доме 5 рацветай на красномокна на юговосток, на центр города срок сдачи 2 квартал 2026 года с проектной декларацией и отчетом о финансовой устойчивости застройщика можно ознакомиться в офисах жилфонда. jn000100324671пожалуйста, дождитесь ответа специалиста при звонке. время дозвона до владельца объявления увеличено изза использования подменных номеров на сайте циан.
в продаже студия на видовом этаже в строящемся доме 5 рацветай на красномокна на юговосток, на центр города срок сдачи 2 квартал 2026 года с проектной декларацией и отчетом о финансовой устойчивости застройщика можно ознакомиться в офисах жилфонда. jn000100324671пожалуйста, дождитесь ответа специалиста при звонке. время дозвона до владельца объявления увеличено изза использования подменных номеров на сайте циан.
Похожие однокомнатные квартиры в районе Заельцовский





