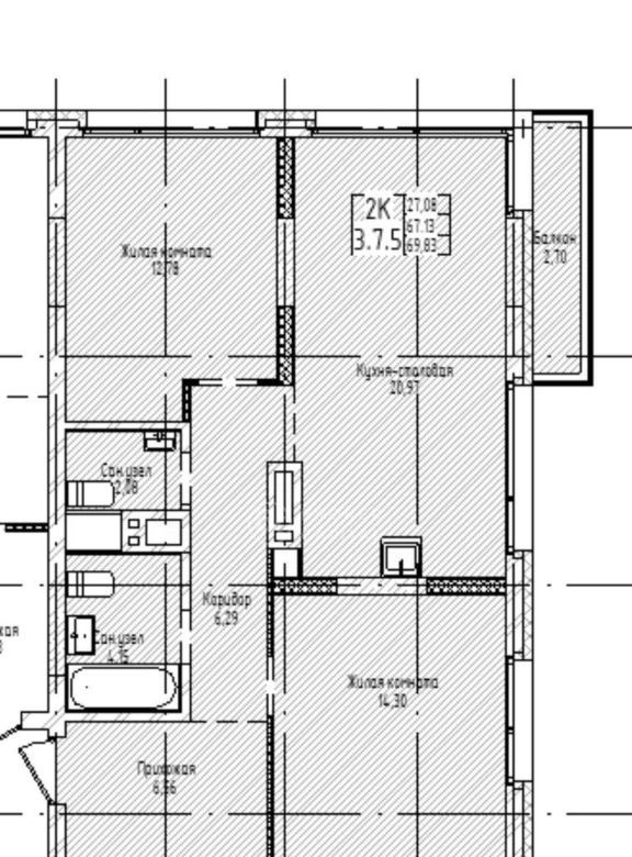
Продается двухкомнатная квартира
Аэропорт 88, район Заельцовский (Аэропорт мкр.)
28.02.2026
























Стоимость
8 800 000 ₽
125 714 рублей за м2
125 714 рублей за м2
Количество комнат
2 комн
Общая площадь
70 м²
Этаж
7 из 18
Несуществующий объект, неправильная информация? - обязательно сообщите.
Дополнительная информация:
арт. 109380012 продаётся евротрёшка 70 м² в квартале авиатор свет, простор и безупречный комфортвариант реальный дом сданцена снижена до конца октябряв месте с квартирой предлагаем к покупке большой семейный подземный паркинг на 2 машиноместа за дополнительную оплату отделка white box от застройщика идеальная база для вашего дизайна чистовая отделка включает ровные стены под покраску, качественную стяжку пола, современные радиаторы и продуманные инженерные сети. установлены розетки, выключатели, приборы учета. просто добавьте свои детали и квартира заиграет вашим стилем панорамные окна во всех комнатах море света и открытые виды. утреннее солнце в спальне, уютные вечера в гостиной, а из кухни живописная перспектива квартала. продуманная планировка без лишних стен свобода для воплощения любых интерьерных решений. просторная кухнягостиная, две большие спальни и два санузла. большая открытая лоджия ваша зона отдыха, оранжерея или место для утреннего кофе с видом на город. объект полностью проверен юристами чистота сделки и юридическая безопасность. никаких скрытых обременений, только уверенность в покупке. квартал авиатор современная инфраструктура, тихие дворы без машин и отличная транспортная доступность. о доме6 квартир на этаже3 больших современных лифтаколясочная на 1 этажеподземный паркинг кладовыебезопасный закрытый дворэто не просто квартира это ваш будущий дом, где каждая деталь создана для комфорта. приглашаем вас на просмотр
арт. 109380012 продаётся евротрёшка 70 м² в квартале авиатор свет, простор и безупречный комфортвариант реальный дом сданцена снижена до конца октябряв месте с квартирой предлагаем к покупке большой семейный подземный паркинг на 2 машиноместа за дополнительную оплату отделка white box от застройщика идеальная база для вашего дизайна чистовая отделка включает ровные стены под покраску, качественную стяжку пола, современные радиаторы и продуманные инженерные сети. установлены розетки, выключатели, приборы учета. просто добавьте свои детали и квартира заиграет вашим стилем панорамные окна во всех комнатах море света и открытые виды. утреннее солнце в спальне, уютные вечера в гостиной, а из кухни живописная перспектива квартала. продуманная планировка без лишних стен свобода для воплощения любых интерьерных решений. просторная кухнягостиная, две большие спальни и два санузла. большая открытая лоджия ваша зона отдыха, оранжерея или место для утреннего кофе с видом на город. объект полностью проверен юристами чистота сделки и юридическая безопасность. никаких скрытых обременений, только уверенность в покупке. квартал авиатор современная инфраструктура, тихие дворы без машин и отличная транспортная доступность. о доме6 квартир на этаже3 больших современных лифтаколясочная на 1 этажеподземный паркинг кладовыебезопасный закрытый дворэто не просто квартира это ваш будущий дом, где каждая деталь создана для комфорта. приглашаем вас на просмотр
Похожие двухкомнатные квартиры в районе Заельцовский





